想了解设备资料?报价?售后?请留言,速回电
厂家直销,留言立享本月优惠价免费提供环保政策、办厂手续、投资预算等资料
反击式破碎机也叫反击式碎石机、反击式粉碎机,是一种高新型的破碎设备,该设备利用其反击能量能够使物料破碎,并且该设备结构设计简单,工作可靠,运行效率超高,物料被加工以后粒度均匀,可随意调节力度大小。

反击式破碎机(大型)

反击式破碎机实拍图(小型)
本系列产品能处理≤300-700毫米以下物料,具抗压强高可达350兆帕,如青石、石灰石、煤矸石、河卵石、花岗岩、铁矿石等等,特别是用于高速公路、铁路、水电工程等流动性石料的作业,可根据加工原料的种类,规模和成品物料要求的不同采用多种配置形式。

反击式破碎机适用于鹅卵石、玄武岩等多种物料
反击式破碎机主要由转子、反击架、机架、棘轮翻盖装置和转动部分等零部件组成。

双转子反击式破碎机结构图
石料由机器上部直接落入高速旋转的转盘,在高速离心力的作用下,与另一部分以伞型方式分流在转盘四周的飞石产生高速碰撞与高密度的粉碎,石料在互相打击后,又会在转盘和机壳之间形成涡流运动而造成多次的互相打击、摩擦、粉碎,从下部直通排出,形成闭路多次循环,由筛分设备控制达到所要求的粒度。

工作原理
1、进料口大、破碎腔高、适应物料硬度高,处理物料含水量过大时,进料溜槽和反击板可配备加热装置,防止物料的粘结;
2、反击板与板锤间隙能方便调节,有效控制出料粒度,颗粒形状好、石粉少;
3、采用新的制造技术,结构设计,全新重型化转子结构和有限元分析技术、三腔破碎,可容纳量增多,运行中效率更高。
4、结合新概念设计,融入自动控制编程器系统,操作、运行更灵活,节省时间、人力,且核心零部件磨耗小、寿命长,综合效益高;
5、设计中在进料口安装了防尘装置,加上涡流腔内部有空气自循环系统,加上特殊电机,减小了震动,又消除了噪音,实现绿色环保生产。
老挝客户生产现场视频
反击式破碎机是一款价格实惠的破石设备,通常几万到十多万就可以选购一台,因为选择的型号不同价格会稍有差异,可以随时点击在线咨询,免费获取优惠报价单,有负责设备的经理详细提供,以及其他详情资讯,一一为您解答,而且开云登陆入口厂家在摸爬滚打中积累了不少经验,设备从设计到售后服务等都独立完成,设备质量更放心、售后更贴心。

客户来厂参观选购
| 型号 | 规格 (mm) |
进料口尺寸 (mm) |
最大进料粒度 (mm) |
处理能力 (t/h) |
电机功率 (kw) |
外形尺寸 (长×宽×高) (mm) |
| PF-1007 | Φ1000×700 | 400×730 | 300 | 30-70 | 4P 37-45 | 2330×1660×2300 |
| PF-1010 | Φ1000×1050 | 400×1080 | 350 | 50-90 | 4P 45-55 | 2370×1700×2390 |
| PF-1210 | Φ1250×1050 | 400×1080 | 350 | 70-130 | 6P 110 | 2680×2160×2800 |
| PF-1214 | Φ1250×1400 | 400×1430 | 350 | 80-180 | 6P 132 | 2650×2460×2800 |
| PF-1315 | Φ1320×1500 | 860×1520 | 500 | 100-280 | 6P 200 | 3180×2720×3120 |
| PF-1320 | Φ1300×2000 | 993×2000 | 500 | 140-380 | 6P 250 | 3220×3100×3120 |
| PF-1520 | Φ1500×2000 | 830×2040 | 700 | 200-550 | 4P 315-400 | 3959×3564×3330 |
| PF-1820 | Φ1800×2000 | 1260×2040 | 800 | 300-800 | 6P 630-710 | 4400×3866×4009 |
一、安装
按本机适用范围选择安装位置,同时保证有足够的检修空间;
二、调试
1、转子在出厂前已经通过平衡处理,用户一般不需要再作平衡试验,在更换锤头及转子部件时,应作平衡配置。
2、主机安装应调平衡,主轴水平度误差小于1mm/m,主从动轮在同一平面内,调整皮带松紧适度,固定电动机。
3、检查各部件安装位置是否移动、变形、锁紧所有螺栓,检查密封是否良好。
4、检查电器箱接线及紧固情况,调整延时继电器及过载保护器,接通电路,试验电机转向,选择合适规格的保险丝。
5、检查液压系统动作是否可靠,有无渗漏现象。
6、清除反击式破碎机内异物,用手搬动转子,检查有无磨擦、碰撞。
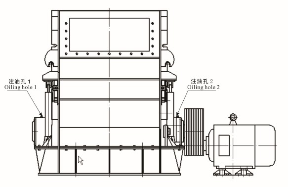
三、润滑剂说明

反击式破碎机润滑剂说明
开机前,从注油孔1、2中各注入3号锂基脂黄油,以后每8个小时注入约50克。同时每次再加入少量机械油以起到散热作用。

开云登陆入口售后服务
对于反击式破碎机安装、调试等,也不用担心,开云登陆入口厂家有专业的售后团队,保持着48小时抵达的售后态度,免费负责设备售后一系列服务,一年保质期,会定期有回访,技术人员免费检查保养、维修,提供原装配件,反击式破碎机已销往30多个国家地区,欢迎广大客户来厂参观选购。
河南郑州反击式破碎机价格详细咨询:0371-67772626。
河南郑州反击式破碎机厂家地址:河南郑州高新技术产业开发区檀香路8号。
上一篇:锤式破碎机详细介绍
下一篇:开云登陆入口球磨机介绍
想了解设备资料?报价?售后?请留言,速回电
厂家直销,留言立享本月优惠价免费提供环保政策、办厂手续、投资预算等资料
3分钟前 高先生:时产200吨制砂机报个价,处理鹅卵石
8分钟前 李先生:移动式破碎机怎么解决粉尘问题?
13分钟前 徐女士:需要制砂机,南宁能看制砂现场吗?
16分钟前 程先生:破碎生产线出个方案及报价,有什么售后服务?
22分钟前 郑女士:想了解时产500吨锤破,加工石灰石
31分钟前 吴先生:成套石头破碎设备有吗?给个详细产品资料
36分钟前 罗先生:每小时100吨左右的鄂破和反击破,推荐下型号
42分钟前 梁先生:膨润土磨到200目,用什么磨粉设备?
提交留言我们会第一时间回复您!
在生态文明建设大环境下,绿色、低碳环保、节能是矿山机械设备行业发展的趋势。就反击破来说,它作为破碎流程中的主要设备投资前景又如何呢?下面我们一起来看一下。
2018-04-09HD1315反击破石机,凭借它自身优良的性能和可靠的质量,广受投资用户喜爱。到底哪家生产的HD1315反击破石机更好呢?我们给大家推荐了河南有名的矿山机器。
2018-03-01反击破,是石料破碎生产线上的主要设备之一,被广泛用于化工、建材、冶金、矿山、建筑和公路能多个领域中。本文是对反击破技术参数和性能详细介绍。
2018-01-311214反击破其规格为Φ1250×1400mm,选用较新技术,设计结构非常特别,成品粒形较好,可以破碎各种粗、中、细物料,是石料生产加工更好的选择。
2017-11-24反击式破碎机是一种能够对物料进行粗、中、细碎的作业的效率高破碎设备,生产能力大,破碎比高,出料力度均匀,适用范围广,可对多种物料进行破碎,1214反击破是使用度较高的型号之一,这款设备怎么样?好用吗?本文对1214反击破进行详细介绍,方便用户进行选购。
2017-11-08伊利石主要是由白云母和钾长石风化而成的,含有的杂质比较多,耐热性能非常的好,经破碎后的伊利石应用范围比较大,伊利石的破碎需要用到破碎机,其中伊利石反击式破碎机是常用的伊利石破碎设备,根据调查显示,河南郑州是生产伊利石反击式破碎机集中的地区,市场上大部分的伊利石反击式破碎机都是在河南郑州生产,而河南郑州伊利石反击式破碎机的价格也是很多客户非常关心的问题,那么究竟该设备的价格是多少呢,下面我们就来做简要介绍。
2016-08-18