想了解设备资料?报价?售后?请留言,速回电
厂家直销,留言立享本月优惠价免费提供环保政策、办厂手续、投资预算等资料
开云登陆入口机械为国内知名企业的大型回转窑生产企业的生产图纸,具有生产工艺简单,对加工设备要求低,成本低等优点,是中小型机械企业生产加工的图纸参考。我们对新设计的回转窑图纸举例介绍。
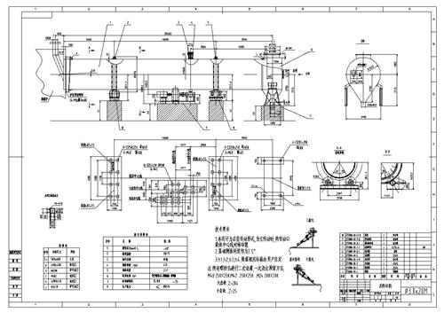
下图为2.2米回转窑图纸原始长度为48米,即2.2米48米回转窑可以根据要求更改为长度38米~60米回转窑,广泛用于水泥窑、冶金化工窑和石灰窑。
我公司专业设计的回转窑图纸还有很多,下面就是我们回转窑的结构示意图:

回转窑一般有2~5组托轮、1组挡轮、装有轮带和大齿圈的圆截面筒体在托轮上呈小角度倾斜状滚转。
下面为回转窑的安装示意图:

由于大中型回转窑其筒节的直径、长度均大,几个套装上轮带的筒节质量更大。因此常出现仅用一台吊车因能力不够而无法吊装的情况。所以,只好采用两台吊车抬吊的方案或用其他方法吊装。
如上图所示,用两台移动吊车吊装回转窑时,因吊装作业方法需要,两台吊车中应有一台是吊起吊件可行走的履带吊(或轮胎吊)。一般筒节可斜置于基础一侧,要尽量靠近基础。起吊前把有轮带的筒节套装上轮带。在确定两吊车吊点时,要先计算出筒节的位置,再依据两台吊车的起重能力,用计算法确定吊点位置,达到按吊车能力分配负荷的目的。吊车的负荷程度应达到有关要求,即吊重应小于两台吊车额定起重量之和的75%,任意一台吊车所负担的负荷不得超过其额定起重量的80%。
.jpg)
吊索捆绑于筒节上的吊点处,两吊车同时吊升筒节到高度略超过托轮后,一台吊车转杆,另一台吊车负重前行,两用车均应平稳操作,协同配合,吊筒节到托轮正上方,对正后放筒节于托轮上。继而将筒节一端与已吊装就位筒节相应端用螺栓连接。若两台吊车均为履带吊或轮胎吊,而且其额定起重量之和又足够大时,也可采用使筒节袖线平行于回转窑纵向中心线且将其置于基础侧面、两台吊车均在其后的吊装方法。吊升筒节到高出基础顶面以后,两台吊车如采用迈步方法,先后分数次吊重前行,为安全和稳定计,应避免两吊车同步吊重前行的作业方法。待筒节靠近托轮时,再吊升些,使其略超出托轮高度。两吊车再迈步前行到筒节于托轮正上方,并落于托轮上。
我们的Φ1.9/1.6×39M回转窑图纸是现有新型的回转窑图纸,该回转窑有节能效能高等特点在煅烧活性石灰和高岭土、铝酸钙粉等领域有着极大的市场空间,比传统的回转窑节能30%左右,改变径回转窑图纸是经过变径回转窑的发明人亲自执笔设计绘制,并且经过上百次的总结经验设计而成,产能达到普通回转窑1.9米直径的产量,能能耗降低30%左右,现有3家企业使用该图纸生产,该直径回转窑一直处于热销状态。
1.8米回转窑图纸是现在卖的较好的图纸。这个回转窑是开云登陆入口机械厂设计研发的干法生产回转窑项目图纸,完整无错,经过数十家企业生产销售产品。成熟稳定,是不可多的的节约成本,效能高节能的Φ1.8×30M回转窑图纸。
想了解设备资料?报价?售后?请留言,速回电
厂家直销,留言立享本月优惠价免费提供环保政策、办厂手续、投资预算等资料
3分钟前 高先生:时产200吨制砂机报个价,处理鹅卵石
8分钟前 李先生:移动式破碎机怎么解决粉尘问题?
13分钟前 徐女士:需要制砂机,南宁能看制砂现场吗?
16分钟前 程先生:破碎生产线出个方案及报价,有什么售后服务?
22分钟前 郑女士:想了解时产500吨锤破,加工石灰石
31分钟前 吴先生:成套石头破碎设备有吗?给个详细产品资料
36分钟前 罗先生:每小时100吨左右的鄂破和反击破,推荐下型号
42分钟前 梁先生:膨润土磨到200目,用什么磨粉设备?
提交留言我们会第一时间回复您!
要想对稀土进行合理加工,首先需要使用回转窑对其进行煅烧,煅烧出来的物料的使用效果更好、应用更广泛。目前市面上生产回转窑设备的厂家非常多,尤其是在河南省,那河南稀土回转窑价格是多少呢?贵不贵呢?下面我们就这些问题进行具体分析。
2017-01-05铝矾土主要成分为氧化铝,通常呈白灰色。铝矾土工业用途广泛,利用价值高,主要用来炼铝和制造耐火材料等。铝矾土工业加工使用铝矾土回转窑进行焙烧作业,焙烧出来的物料使之能够更加有利于以下工作的开展。
2016-11-29钛白粉回转窑是对钛白粉实现煅烧工艺的主要设备,河南开云登陆入口机器(以下简称开云登陆入口厂家)对钛白粉有着深入的研究,因此开云登陆入口厂家的钛白粉回转窑设备功能、优势、特点才会更多、更具体,该设备经过精心的研究具有很多优势。
2016-09-23硅藻土回转窑是对硅藻土进行煅烧的重要设备,它是依据其性质研制而成的,在河南销量很广,而且其硅藻土回转窑厂家众多,由于厂家的增多,其硅藻土回转窑价格是行业内较低的,其具体情况请看下文的详解。
2016-09-19碳素回转窑是针对碳素原料所生产的一款优质设备,其结构先进、质量可靠、性能优势突出,对碳素有着很好的煅烧效果,具有很强的专业性和针对性。随着碳素工业用途不断扩大,对该设备需求量也日益增多,市场上的碳素回转窑厂家也是数不胜数、质量参差不齐、价格差异较大,那么河南碳素回转窑价格是多少呢?下面将为大家简单介绍。
2016-09-05某石灰石矿拥有9座煅烧窑,其中两座占总产量40%的回转窑在投产以来一直出现各种问题,需不断的开展检修工作,设备运行的稳定性较差,严重影响生产进度。于是该厂对存在的问题进行了分析,并积极采取了有效措施,设备运行状况大为改善。
2016-01-05